[売買]
写真・間取図・地図はこのボタンをクリック
| 物件種別 | 中古マンション |
|---|---|
| 物件名 | トーカンマンション幌平橋 |
| 所在地 | 札幌市中央区南十六条西5丁目3-1 |
| 価格 | 350万円 |
| 最寄駅 | 地下鉄 南北線 幌平橋 徒歩3分 |
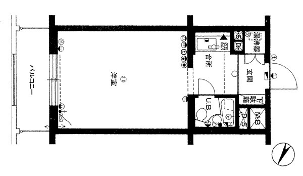
| 間取・面積 | 1K(洋室12.0帖) 27m2 【バ】3.78m2 |
| 構造・階床 | RC 4階建の4階 |
| 管理費 | 月額5,400円 |
| 積立金 | 月額6,600円 |
| 築年 | 1978年1月 |
| 総戸数 | 64戸 |
| 現況 | 空室 |
| 引渡日 | 相談 |
| 賃貸月額 | 27,000円 |
| 年利回り | (予想)7.54% |
| 施主 | 地産トーカン |
| 施工者 | 大末建設 |
| 管理会社 | MMSマンションマネージメントサービス(株) |
| 取引態様 | 専任媒介 |
| 設備 | 水道、都市ガス、風呂、トイレ、エレベーター、給湯、シャワー |
| 備考 | 現在賃貸中 都市ガス給湯・灯油暖房 エレベーター バルコニー コンビニまで徒歩1分 市電『静修学園前』停 徒歩2分 中島公園・豊平川河川敷徒歩圏 固定資産税等年額25,300円(令和4年度) |
![]() |
![]() |
![]() |
![]() |
![]() |
| アパマンプラザ | 新築賃貸札幌プラザ | マンション投資の鉄人 | 札幌不動産管理プラザ | 札幌賃貸プラザ |
![]() |
![]() |
![]() |
![]() |
![]() |
| 札幌マンスリーマンションプラザ | 札幌家具付マンションアベニュー | 札幌マンション学生賃貸スクウェア | 札幌中古マンション.net | 札幌インテリア |
Copyright (c) www.apaman-plaza.co.jp All rights reserved.


| 物件名 | トーカンマンション幌平橋 |
| 所在地 | 札幌市中央区南十六条西5丁目3-1 |
| 価格 | 350万円 |
| 交通機関 | 地下鉄 南北線 幌平橋 徒歩3分 |
| 間取・面積 | 1K(洋室12.0帖) 27[m2] 【バ】3.78[m2] |
| 構造・階床 | RC・4階建の4階 |
| 管理費 | 5,400円/月 |
| 積立金 | 6,600円/月 |
| 築年数 | 1978年1月 |
| 総戸数 | 64戸 |
| 現況 | 空室 |
| 引渡日 | 相談 |
| 賃貸月額 | 27,000円 |
| 年利回り | (予想)7.54% |
| 施主 | 地産トーカン |
| 施工 | 大末建設 |
| 管理会社 | MMSマンションマネージメントサービス(株) |
| 取引態様 | 専任媒介 |
| 設備 | |
| 備考 | 現在賃貸中 都市ガス給湯・灯油暖房 エレベーター バルコニー コンビニまで徒歩1分 市電『静修学園前』停 徒歩2分 中島公園・豊平川河川敷徒歩圏 固定資産税等年額25,300円(令和4年度) |
地下鉄南北線「幌平橋」駅徒歩3分、札幌市電「静修学園前」停が徒歩2分の所にあります。
近隣には、コンビニ徒歩1分、スーパーのラルズマートが徒歩5分の所にあります。エレベーターあり、現在賃貸中となります。詳細はお問い合わせください。
[62864 : 売買]
地下鉄南北線「幌平橋」駅徒歩3分、札幌市電「静修学園前」停が徒歩2分の所にあります。
近隣には、コンビニ徒歩1分、スーパーのラルズマートが徒歩5分の所にあります。エレベーターあり、現在賃貸中となります。詳細はお問い合わせください。