[売買]
写真・間取図・地図はこのボタンをクリック
| 物件種別 | 中古マンション |
|---|---|
| 物件名 | トーカンマンション幌平橋 |
| 所在地 | 札幌市中央区南十六条西5丁目3-1 |
| 価格 | 350万円 |
| 最寄駅 | 地下鉄 南北線 幌平橋 徒歩3分 |
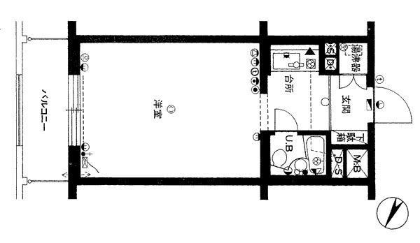
| 間取・面積 | 1K(洋室12.0帖) 27m2 【バ】3.78m2 |
| 構造・階床 | RC 4階建の4階 |
| 管理費 | 月額5,400円 所有者負担 |
| 積立金 | 月額6,600円 所有者負担 |
| 築年 | 1978年4月 |
| 総戸数 | 63戸 |
| 現況 | 空室 |
| 引渡日 | 相談 |
| 賃貸月額 | 34,000円 |
| 年利回り | (予想)7.54% |
| 施主 | 地産トーカン |
| 施工者 | 大末建設 |
| 管理会社 | MMSマンションマネージメントサービス |
| 取引態様 | 専属専任媒介 |
| 設備 | 水道、都市ガス、風呂、トイレ、エレベーター、シャワー |
| 備考 | ・灯油FF暖房機 ・バルコニー ・モニター付きインターホン ・家具・家電付き |
![]() |
![]() |
![]() |
![]() |
![]() |
| アパマンプラザ | 新築賃貸札幌プラザ | マンション投資の鉄人 | 札幌不動産管理プラザ | 札幌賃貸プラザ |
![]() |
![]() |
![]() |
![]() |
![]() |
| 札幌マンスリーマンションプラザ | 札幌家具付マンションアベニュー | 札幌マンション学生賃貸スクウェア | 札幌中古マンション.net | 札幌インテリア |
Copyright (c) www.apaman-plaza.co.jp All rights reserved.


| 物件名 | トーカンマンション幌平橋 |
| 所在地 | 札幌市中央区南十六条西5丁目3-1 |
| 価格 | 350万円 |
| 交通機関 | 地下鉄 南北線 幌平橋 徒歩3分 |
| 間取・面積 | 1K(洋室12.0帖) 27[m2] 【バ】3.78[m2] |
| 構造・階床 | RC・4階建の4階 |
| 管理費 | 5,400円/月 所有者負担 |
| 積立金 | 6,600円/月 所有者負担 |
| 築年数 | 1978年4月 |
| 総戸数 | 63戸 |
| 現況 | 空室 |
| 引渡日 | 相談 |
| 賃貸月額 | 34,000円 |
| 年利回り | (予想)7.54% |
| 施主 | 地産トーカン |
| 施工 | 大末建設 |
| 管理会社 | MMSマンションマネージメントサービス |
| 取引態様 | 専属専任媒介 |
| 設備 | |
| 備考 | ・灯油FF暖房機 ・バルコニー ・モニター付きインターホン ・家具・家電付き |
トーカンマンション幌平橋は人気の高い中島公園の南端にあり、閑静な住宅街の中にあります。周辺には中島公園をはじめ、人気レストラン、コンビニ、スーパーなど多くの施設が点在します。地下鉄も近い物件ですが市電も利用できるためとても便利です。
室内は1Kタイプ。ちょっと広めの間取りで家具・家電が設置されております。
投資やセカンドハウスに最適です。
人気の高い中島公園の南側エリアの物件です。
[119754 : 売買]
トーカンマンション幌平橋は人気の高い中島公園の南端にあり、閑静な住宅街の中にあります。周辺には中島公園をはじめ、人気レストラン、コンビニ、スーパーなど多くの施設が点在します。地下鉄も近い物件ですが市電も利用できるためとても便利です。
室内は1Kタイプ。ちょっと広めの間取りで家具・家電が設置されております。
投資やセカンドハウスに最適です。
人気の高い中島公園の南側エリアの物件です。