[売買]
写真・間取図・地図はこのボタンをクリック
| 物件種別 | 中古マンション |
|---|---|
| 物件名 | プラザハイツ24(家 具 家 電 付) |
| 所在地 | 札幌市北区北二十三条西4丁目2-3 |
| 価格 | 320万円 |
| 最寄駅 | 地下鉄 南北線 北24条 徒歩1分 |
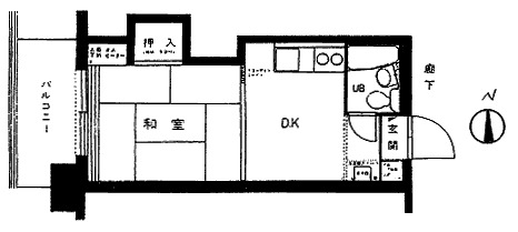
| 間取・面積 | 1DK(洋室6.0帖+DK5.0帖) 19.5m2 【バ】4.05m2 |
| 構造・階床 | SRC 11階建の2階 |
| 管理費 | 月額5,300円 |
| 積立金 | 月額9,000円 |
| 築年 | 1982年3月 |
| 総戸数 | 198戸 |
| 現況 | 居住中 |
| 引渡日 | 相談 |
| 賃貸月額 | 35,300円 |
| 年利回り | 7.85% |
| 施主 | 北海道住宅供給共済共同組合 |
| 施工者 | 北日本興業 |
| 管理会社 | エムエムエスマンションマネージメントサービス株式会社 |
| 取引態様 | 専属専任媒介 |
| 設備 | 水道、都市ガス、風呂、トイレ、エレベーター、給湯、シャワー |
| 備考 | 通信費 63円 ★家具家電付物件★ (冷蔵庫、電子レンジ、洗濯機、テレビ、ガステーブル、照明、机、イス、ベッド、カーテン) ◆室内床オールクッションフロア ◆経済的な灯油暖房 ◆夜間オートロック ◆防犯カメラ設置(エレベーター前) ◆平成15年7月外壁大規模修繕工事済 ◆売主契約不適合免責 ◆オーナーチェンジ |
![]() |
![]() |
![]() |
![]() |
![]() |
| アパマンプラザ | 新築賃貸札幌プラザ | マンション投資の鉄人 | 札幌不動産管理プラザ | 札幌賃貸プラザ |
![]() |
![]() |
![]() |
![]() |
![]() |
| 札幌マンスリーマンションプラザ | 札幌家具付マンションアベニュー | 札幌マンション学生賃貸スクウェア | 札幌中古マンション.net | 札幌インテリア |
Copyright (c) www.apaman-plaza.co.jp All rights reserved.


| 物件名 | プラザハイツ24(家 具 家 電 付) |
| 所在地 | 札幌市北区北二十三条西4丁目2-3 |
| 価格 | 320万円 |
| 交通機関 | 地下鉄 南北線 北24条 徒歩1分 |
| 間取・面積 | 1DK(洋室6.0帖+DK5.0帖) 19.5[m2] 【バ】4.05[m2] |
| 構造・階床 | SRC・11階建の2階 |
| 管理費 | 5,300円/月 |
| 積立金 | 9,000円/月 |
| 築年数 | 1982年3月 |
| 総戸数 | 198戸 |
| 現況 | 居住中 |
| 引渡日 | 相談 |
| 賃貸月額 | 35,300円 |
| 年利回り | 7.85% |
| 施主 | 北海道住宅供給共済共同組合 |
| 施工 | 北日本興業 |
| 管理会社 | エムエムエスマンションマネージメントサービス株式会社 |
| 取引態様 | 専属専任媒介 |
| 設備 | |
| 備考 | 通信費 63円 ★家具家電付物件★ (冷蔵庫、電子レンジ、洗濯機、テレビ、ガステーブル、照明、机、イス、ベッド、カーテン) ◆室内床オールクッションフロア ◆経済的な灯油暖房 ◆夜間オートロック ◆防犯カメラ設置(エレベーター前) ◆平成15年7月外壁大規模修繕工事済 ◆売主契約不適合免責 ◆オーナーチェンジ |
※※※ 家具家電付き!北24条エリアの投資向けマンション! ※※※
北24条は、地下鉄出入り口が5ヶ所あり、目の前に大きなバスターミナルがあります。コンビニも近くにあり、スーパーまで徒歩5分、すすきのに次ぐ飲食店街などがあり交通・買物の便利が良く人気地域です。
地下鉄北24条駅から大通駅まで7分と移動時間があまりかからず通学・通勤にとても便利です。特に札幌駅から北24条駅までは北海道大学のキャンパスがあります。
「プラザハイツ24」は、夜間オートロック、防犯カメラ設置になっておりますのでセキュリティーなどの印象もとても良いです。
室内は西向きバルコニーで、家具・家電(ベッド、冷蔵庫、電子レンジ、洗濯機、テレビ、ガステーブル、机、イス、照明器具、カーテン、収納棚)が設置されています。
2023年10月に和室の床を畳からクッションフロアに変更したため、床はオールクッションフロアとなっています。
こちらのお部屋は2階の為、忙しい朝のエレベーター待ち等に影響されず階段で外出できるのもオススメポイントです。
【近隣施設までの距離】
◇ローソン 徒歩1分
◇地下鉄入口、バスターミナルは隣の建物
◇北洋銀行北24条支店 徒歩1分
◇北海道銀行、北23条郵便局 徒歩2分
◇スーパー(マックスバリュー) 徒歩5分
[112690 : 売買]
※※※ 家具家電付き!北24条エリアの投資向けマンション! ※※※
北24条は、地下鉄出入り口が5ヶ所あり、目の前に大きなバスターミナルがあります。コンビニも近くにあり、スーパーまで徒歩5分、すすきのに次ぐ飲食店街などがあり交通・買物の便利が良く人気地域です。
地下鉄北24条駅から大通駅まで7分と移動時間があまりかからず通学・通勤にとても便利です。特に札幌駅から北24条駅までは北海道大学のキャンパスがあります。
「プラザハイツ24」は、夜間オートロック、防犯カメラ設置になっておりますのでセキュリティーなどの印象もとても良いです。
室内は西向きバルコニーで、家具・家電(ベッド、冷蔵庫、電子レンジ、洗濯機、テレビ、ガステーブル、机、イス、照明器具、カーテン、収納棚)が設置されています。
2023年10月に和室の床を畳からクッションフロアに変更したため、床はオールクッションフロアとなっています。
こちらのお部屋は2階の為、忙しい朝のエレベーター待ち等に影響されず階段で外出できるのもオススメポイントです。
【近隣施設までの距離】
◇ローソン 徒歩1分
◇地下鉄入口、バスターミナルは隣の建物
◇北洋銀行北24条支店 徒歩1分
◇北海道銀行、北23条郵便局 徒歩2分
◇スーパー(マックスバリュー) 徒歩5分