[売買]
写真・間取図・地図はこのボタンをクリック
| 物件種別 | 中古マンション |
|---|---|
| 物件名 | ソシエール南5条 |
| 所在地 | 札幌市中央区南五条西9丁目1014-1 |
| 価格 | 950万円 |
| 最寄駅 | 市電 東本願寺前 札幌市電 資生館小学校前から徒歩で7分 徒歩4分 |
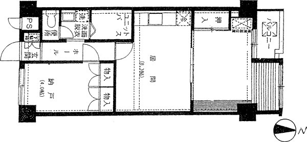
| 間取・面積 | 2DK(LDK8.3帖+和室6.0帖+洋室4.0帖) 47.02m2 【バ】2.47m2 |
| 構造・階床 | RC 7階建の2階 |
| 管理費 | 月額9,400円 |
| 積立金 | 月額8,500円 |
| 築年 | 1982年11月 |
| 総戸数 | 62戸 |
| 現況 | 居住中 |
| 引渡日 | 相談 |
| 賃貸月額 | 53,000円 |
| 年利回り | 6.69% |
| 施主 | 原田建設工業 株式会社 |
| 施工者 | 多田建設 株式会社 |
| 管理会社 | 東急コミュニティ(株) |
| 取引態様 | 専任媒介 |
| 設備 | 水道、都市ガス、風呂、トイレ、エレベーター、シャワー |
| 備考 | 水道料(基本) 月額1,600円 ・オートロック ・バルコニー ・室内収納 ・浴・トイレ別 ・セブンイレブンまで徒歩2分 ・24時間スーパー(ディナーベル)まで徒歩5分 ・固定資産税・都市計画税 ◆賃貸中オーナーチェンジ |
![]() |
![]() |
![]() |
![]() |
![]() |
| アパマンプラザ | 新築賃貸札幌プラザ | マンション投資の鉄人 | 札幌不動産管理プラザ | 札幌賃貸プラザ |
![]() |
![]() |
![]() |
![]() |
![]() |
| 札幌マンスリーマンションプラザ | 札幌家具付マンションアベニュー | 札幌マンション学生賃貸スクウェア | 札幌中古マンション.net | 札幌インテリア |
Copyright (c) www.apaman-plaza.co.jp All rights reserved.


| 物件名 | ソシエール南5条 |
| 所在地 | 札幌市中央区南五条西9丁目1014-1 |
| 価格 | 950万円 |
| 交通機関 | 市電 東本願寺前 札幌市電 資生館小学校前から徒歩で7分 徒歩4分 |
| 間取・面積 | 2DK(LDK8.3帖+和室6.0帖+洋室4.0帖) 47.02[m2] 【バ】2.47[m2] |
| 構造・階床 | RC・7階建の2階 |
| 管理費 | 9,400円/月 |
| 積立金 | 8,500円/月 |
| 築年数 | 1982年11月 |
| 総戸数 | 62戸 |
| 現況 | 居住中 |
| 引渡日 | 相談 |
| 賃貸月額 | 53,000円 |
| 年利回り | 6.69% |
| 施主 | 原田建設工業 株式会社 |
| 施工 | 多田建設 株式会社 |
| 管理会社 | 東急コミュニティ(株) |
| 取引態様 | 専任媒介 |
| 設備 | |
| 備考 | 水道料(基本) 月額1,600円 ・オートロック ・バルコニー ・室内収納 ・浴・トイレ別 ・セブンイレブンまで徒歩2分 ・24時間スーパー(ディナーベル)まで徒歩5分 ・固定資産税・都市計画税 ◆賃貸中オーナーチェンジ |
現在賃貸中 管理費等を差し引いた実質月額賃料は35,100円年利回り4.43%で法人契約です。 今回の物件は、地下鉄「西11丁目」、「すすきの」駅各徒歩9分と都心の好立地に建っています。また、市電の「資生館小学校前」停が徒歩4分になります。周辺には、大通公園や狸小路等も徒歩圏内にあります。
近辺には、コンビニのセブンイレブンが徒歩2分、24時間スーパーのディナーベルが徒歩5分の所にあります。
お部屋は、2階です。間取りは、2LDK。この広さでの価格は、お手頃といえます。地上デジタル放送対応、NTT光ファイバー、玄関はオートロックシステムです。
[111274 : 売買]
現在賃貸中 管理費等を差し引いた実質月額賃料は35,100円年利回り4.43%で法人契約です。 今回の物件は、地下鉄「西11丁目」、「すすきの」駅各徒歩9分と都心の好立地に建っています。また、市電の「資生館小学校前」停が徒歩4分になります。周辺には、大通公園や狸小路等も徒歩圏内にあります。
近辺には、コンビニのセブンイレブンが徒歩2分、24時間スーパーのディナーベルが徒歩5分の所にあります。
お部屋は、2階です。間取りは、2LDK。この広さでの価格は、お手頃といえます。地上デジタル放送対応、NTT光ファイバー、玄関はオートロックシステムです。