[売買]
写真・間取図・地図はこのボタンをクリック
| 物件種別 | 中古マンション |
|---|---|
| 物件名 | 朝日プラザ栄通 |
| 所在地 | 札幌市白石区栄通19丁目4-33 |
| 価格 | 600万円 |
| 最寄駅 | 地下鉄 東西線 南郷18丁目 徒歩5分 |
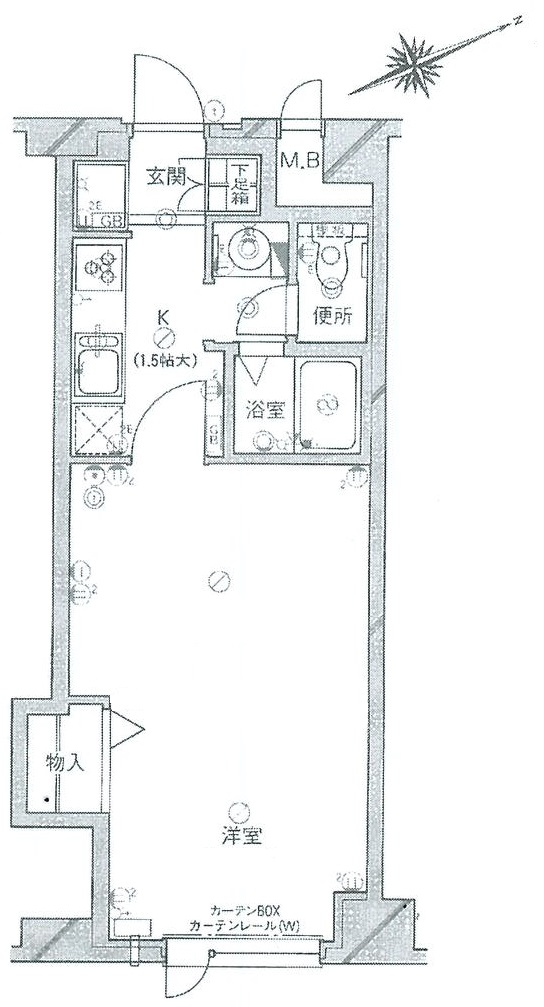
| 間取・面積 | 1K(洋室11.0帖) 31.71m2 【バ】0m2 |
| 構造・階床 | RC 6階建の6階 |
| 管理費 | 月額7,000円 |
| 積立金 | 月額9,510円 |
| 築年 | 1989年1月 |
| 総戸数 | 29戸 |
| 現況 | 居住中 |
| 引渡日 | 相談 |
| 賃貸月額 | 50,000円 |
| 年利回り | 10.00% |
| 施主 | 朝日住建 |
| 施工者 | 東建工業 |
| 管理会社 | 日本ハウズイング 株式会社 |
| 取引態様 | 専属専任媒介 |
| 設備 | 水道、都市ガス、風呂、トイレ、エレベーター、給湯、シャワー |
| 備考 | ・現在、賃貸中。オーナーチェンジ物件。 ・賃料月額55,000円(手取り月額32,490円) 表面利回り10.00%、実質利回り6.49% ・家具家電付き ・都市ガス給湯器・暖房機・コンロ ・オートロック ・エレベーターあり ・外壁タイル貼り ・駐車場、駐輪場有り ・コープさっぽろ 徒歩3分 ・東光ストア徒歩5分 ・銀行・郵便局徒歩3分 ・ドラッグストア徒歩3分 ・近隣飲食店・店舗多数 ・白石東冒険公園徒歩2分 ・町内会費(居住の場合)月額200円 ・外部区分所有者協力金月額1,000円 |
![]() |
![]() |
![]() |
![]() |
![]() |
| アパマンプラザ | 新築賃貸札幌プラザ | マンション投資の鉄人 | 札幌不動産管理プラザ | 札幌賃貸プラザ |
![]() |
![]() |
![]() |
![]() |
![]() |
| 札幌マンスリーマンションプラザ | 札幌家具付マンションアベニュー | 札幌マンション学生賃貸スクウェア | 札幌中古マンション.net | 札幌インテリア |
Copyright (c) www.apaman-plaza.co.jp All rights reserved.


| 物件名 | 朝日プラザ栄通 |
| 所在地 | 札幌市白石区栄通19丁目4-33 |
| 価格 | 600万円 |
| 交通機関 | 地下鉄 東西線 南郷18丁目 徒歩5分 |
| 間取・面積 | 1K(洋室11.0帖) 31.71[m2] 【バ】0[m2] |
| 構造・階床 | RC・6階建の6階 |
| 管理費 | 7,000円/月 |
| 積立金 | 9,510円/月 |
| 築年数 | 1989年1月 |
| 総戸数 | 29戸 |
| 現況 | 居住中 |
| 引渡日 | 相談 |
| 賃貸月額 | 50,000円 |
| 年利回り | 10.00% |
| 施主 | 朝日住建 |
| 施工 | 東建工業 |
| 管理会社 | 日本ハウズイング 株式会社 |
| 取引態様 | 専属専任媒介 |
| 設備 | |
| 備考 | ・現在、賃貸中。オーナーチェンジ物件。 ・賃料月額55,000円(手取り月額32,490円) 表面利回り10.00%、実質利回り6.49% ・家具家電付き ・都市ガス給湯器・暖房機・コンロ ・オートロック ・エレベーターあり ・外壁タイル貼り ・駐車場、駐輪場有り ・コープさっぽろ 徒歩3分 ・東光ストア徒歩5分 ・銀行・郵便局徒歩3分 ・ドラッグストア徒歩3分 ・近隣飲食店・店舗多数 ・白石東冒険公園徒歩2分 ・町内会費(居住の場合)月額200円 ・外部区分所有者協力金月額1,000円 |
この物件は、地下鉄東西線「南郷18丁目」駅から徒歩4分、近隣にはスーパー、コンビニ、飲食店、ドラッグストア、郵便局、銀行、大型家具店その他店舗が立ち並びほとんどがマンションから徒歩数分以内で生活するには大変便利な立地です。
「南郷18丁目」駅から「大通」駅まで13分と移動時間があまりかからず通学・通勤にとても便利です。特に隣の「大谷地」駅近くの北星学園大学・北星女子短期大学の学生さん、徒歩10分圏内には専門学校、病院、車で数分の流通センター(倉庫地区)で働いている方の需要があります。
浴室・トイレ別、大きめキッチンと洗面化粧台、家具家電付。都市ガス物件。
最上階にて、眺望は良好です。
現在、賃貸中。オーナーチェンジ物件。
空室になりましたら、セカンドハウス利用も可能となります。
[109608 : 売買]
この物件は、地下鉄東西線「南郷18丁目」駅から徒歩4分、近隣にはスーパー、コンビニ、飲食店、ドラッグストア、郵便局、銀行、大型家具店その他店舗が立ち並びほとんどがマンションから徒歩数分以内で生活するには大変便利な立地です。
「南郷18丁目」駅から「大通」駅まで13分と移動時間があまりかからず通学・通勤にとても便利です。特に隣の「大谷地」駅近くの北星学園大学・北星女子短期大学の学生さん、徒歩10分圏内には専門学校、病院、車で数分の流通センター(倉庫地区)で働いている方の需要があります。
浴室・トイレ別、大きめキッチンと洗面化粧台、家具家電付。都市ガス物件。
最上階にて、眺望は良好です。
現在、賃貸中。オーナーチェンジ物件。
空室になりましたら、セカンドハウス利用も可能となります。