[売買]
写真・間取図・地図はこのボタンをクリック
| 物件種別 | 中古マンション |
|---|---|
| 物件名 | パークハイツ中島 |
| 所在地 | 札幌市中央区南九条西3丁目1-8 |
| 価格 | 990万円 |
| 最寄駅 | 地下鉄 南北線 中島公園 徒歩2分 |
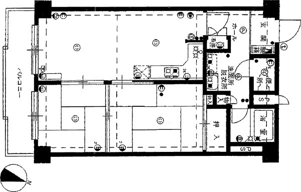
| 間取・面積 | 2LDK(LDK10.5帖+洋室6.0帖+和室4.5帖) 48.6m2 【バ】6.48m2 |
| 構造・階床 | SRC 11階建の4階 |
| 管理費 | 月額10,210円 所有者負担 |
| 積立金 | 月額12,740円 所有者負担 |
| 築年 | 1981年3月 |
| 総戸数 | 53戸 |
| 現況 | 居住中 |
| 引渡日 | 相談 |
| 賃貸月額 | 0円 |
| 年利回り | |
| 施主 | 丸虎佐藤建設 |
| 施工者 | 丸虎佐藤建設 |
| 管理会社 | (株)穴吹ハウジングサービス |
| 取引態様 | 専属専任媒介 |
| 設備 | 水道、都市ガス、風呂、トイレ、エレベーター、給湯、シャワー |
| 備考 | 窓は南向きで日当たり良好 スーパー徒歩2分、コンビニ徒歩1分、郵便局徒歩2分、中島公園も徒歩2分です。 室内を3DKから2LDKに改装しています。 現在居住中 ◆固定資産税・都市計画税 年額65,310円 |
![]() |
![]() |
![]() |
![]() |
![]() |
| アパマンプラザ | 新築賃貸札幌プラザ | マンション投資の鉄人 | 札幌不動産管理プラザ | 札幌賃貸プラザ |
![]() |
![]() |
![]() |
![]() |
![]() |
| 札幌マンスリーマンションプラザ | 札幌家具付マンションアベニュー | 札幌マンション学生賃貸スクウェア | 札幌中古マンション.net | 札幌インテリア |
Copyright (c) www.apaman-plaza.co.jp All rights reserved.


| 物件名 | パークハイツ中島 |
| 所在地 | 札幌市中央区南九条西3丁目1-8 |
| 価格 | 990万円 |
| 交通機関 | 地下鉄 南北線 中島公園 徒歩2分 |
| 間取・面積 | 2LDK(LDK10.5帖+洋室6.0帖+和室4.5帖) 48.6[m2] 【バ】6.48[m2] |
| 構造・階床 | SRC・11階建の4階 |
| 管理費 | 10,210円/月 所有者負担 |
| 積立金 | 12,740円/月 所有者負担 |
| 築年数 | 1981年3月 |
| 総戸数 | 53戸 |
| 現況 | 居住中 |
| 引渡日 | 相談 |
| 賃貸月額 | 0円 |
| 年利回り | |
| 施主 | 丸虎佐藤建設 |
| 施工 | 丸虎佐藤建設 |
| 管理会社 | (株)穴吹ハウジングサービス |
| 取引態様 | 専属専任媒介 |
| 設備 | |
| 備考 | 窓は南向きで日当たり良好 スーパー徒歩2分、コンビニ徒歩1分、郵便局徒歩2分、中島公園も徒歩2分です。 室内を3DKから2LDKに改装しています。 現在居住中 ◆固定資産税・都市計画税 年額65,310円 |
パークハイツ中島園は、地下鉄南北線「中島公園」駅、中島公園まで徒歩3分、全国有数の歓楽街「すすきの」まで徒歩8分と都心に位置し、交通・生活とも利便性の高い地域に位置しております。家具家電が付いていますので空いても賃貸が決まりやすいです。
室内はバルコニー付きで、経済的な灯油FF暖房、照明器具が付いています。コンビニのセブンイレブン・ローソンは徒歩1分のところにあります。スーパーのまいばすけっとは徒歩2分の場所にあり、アクセスはとてもよくおすすめです。
パークハイツ中島は地下鉄南北線「中島公園」駅から徒歩2分、都心のオアシス中島公園も徒歩2分、すすきのまでは徒歩5分です。
散歩やジョギングする人が行き交う市民憩いの場所として知られる中島公園は、繁華街すすきのに隣り合わせた街の中心部にある緑豊かな公園で、「菖蒲池」のほか「豊平館」「八窓庵」といった国の重要文化財、音楽専用ホール「Kitara」や「天文台」などがあります。初夏の風物詩である「北海道神宮例祭」では祭り屋台の会場として賑わい、冬にはクロスカントリーコースが登場し、道具(靴、板、ストック)を一式無料で借りることができます。
[109144 : 売買]
パークハイツ中島園は、地下鉄南北線「中島公園」駅、中島公園まで徒歩3分、全国有数の歓楽街「すすきの」まで徒歩8分と都心に位置し、交通・生活とも利便性の高い地域に位置しております。家具家電が付いていますので空いても賃貸が決まりやすいです。
室内はバルコニー付きで、経済的な灯油FF暖房、照明器具が付いています。コンビニのセブンイレブン・ローソンは徒歩1分のところにあります。スーパーのまいばすけっとは徒歩2分の場所にあり、アクセスはとてもよくおすすめです。
パークハイツ中島は地下鉄南北線「中島公園」駅から徒歩2分、都心のオアシス中島公園も徒歩2分、すすきのまでは徒歩5分です。
散歩やジョギングする人が行き交う市民憩いの場所として知られる中島公園は、繁華街すすきのに隣り合わせた街の中心部にある緑豊かな公園で、「菖蒲池」のほか「豊平館」「八窓庵」といった国の重要文化財、音楽専用ホール「Kitara」や「天文台」などがあります。初夏の風物詩である「北海道神宮例祭」では祭り屋台の会場として賑わい、冬にはクロスカントリーコースが登場し、道具(靴、板、ストック)を一式無料で借りることができます。