[売買]
写真・間取図・地図はこのボタンをクリック
| 物件種別 | 中古マンション |
|---|---|
| 物件名 | ライオンズシティ南3条 |
| 所在地 | 札幌市中央区南三条西8丁目4-2 |
| 価格 | 450万円 |
| 最寄駅 | 地下鉄 南北線 すすきの 徒歩7分 |
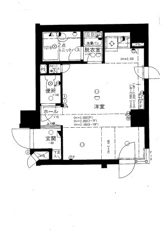
| 間取・面積 | ワンルーム(10.0帖) 25.24m2 【バ】0m2 |
| 構造・階床 | SRC 10階建の10階 |
| 管理費 | 月額5,930円 所有者負担 |
| 積立金 | 月額5,120円 所有者負担 |
| 築年 | 1991年3月 |
| 総戸数 | 106戸 |
| 現況 | 空室 |
| 引渡日 | 即時 |
| 賃貸月額 | 43,000円 |
| 年利回り | |
| 施主 | 株式会社 大京 |
| 施工者 | 日邦建設工業 株式会社 |
| 管理会社 | 株式会社 大京アステージ |
| 取引態様 | 専属専任媒介 |
| 設備 | 水道、都市ガス、風呂、トイレ、エレベーター、給湯、シャワー |
| 備考 | ・間取りワンルーム 面積25.24u ・南西角部屋 ・浴室・トイレ別。 ・都市ガス給湯器・暖房機、ビルトインコンロ。 ・オートロック・エレベーター・宅配ボックス。 ・地下駐車場・駐輪場・バイク置場。 ・市電停留所「資生館小学校前」徒歩4分 ・床、内装リフォーム済み(2025年11月1日完成) |
![]() |
![]() |
![]() |
![]() |
![]() |
| アパマンプラザ | 新築賃貸札幌プラザ | マンション投資の鉄人 | 札幌不動産管理プラザ | 札幌賃貸プラザ |
![]() |
![]() |
![]() |
![]() |
![]() |
| 札幌マンスリーマンションプラザ | 札幌家具付マンションアベニュー | 札幌マンション学生賃貸スクウェア | 札幌中古マンション.net | 札幌インテリア |
Copyright (c) www.apaman-plaza.co.jp All rights reserved.


| 物件名 | ライオンズシティ南3条 |
| 所在地 | 札幌市中央区南三条西8丁目4-2 |
| 価格 | 450万円 |
| 交通機関 | 地下鉄 南北線 すすきの 徒歩7分 |
| 間取・面積 | ワンルーム(10.0帖) 25.24[m2] 【バ】0[m2] |
| 構造・階床 | SRC・10階建の10階 |
| 管理費 | 5,930円/月 所有者負担 |
| 積立金 | 5,120円/月 所有者負担 |
| 築年数 | 1991年3月 |
| 総戸数 | 106戸 |
| 現況 | 空室 |
| 引渡日 | 即時 |
| 賃貸月額 | 43,000円 |
| 年利回り | |
| 施主 | 株式会社 大京 |
| 施工 | 日邦建設工業 株式会社 |
| 管理会社 | 株式会社 大京アステージ |
| 取引態様 | 専属専任媒介 |
| 設備 | |
| 備考 | ・間取りワンルーム 面積25.24u ・南西角部屋 ・浴室・トイレ別。 ・都市ガス給湯器・暖房機、ビルトインコンロ。 ・オートロック・エレベーター・宅配ボックス。 ・地下駐車場・駐輪場・バイク置場。 ・市電停留所「資生館小学校前」徒歩4分 ・床、内装リフォーム済み(2025年11月1日完成) |
すすきの近く、浴室トイレ別のワンルーム、都市ガスの給湯・暖房・コンロ付き。
投資にセカンドハウスに活躍します。室内は、内装リフォーム中(2024年11月末日完成予定)。
建物は外壁タイル貼りで、共用玄関オートロック、インターホンになっておりエントランスには便利な宅配ボックスも設置があります。建物地下に駐車場、駐輪場、バイク置場等があり管理人さんも日勤で勤務があります。
地下鉄「すすきの」、「西11丁目」駅まで各徒歩7分。市電「資生館小学校前」停まで徒歩4分。
大通・すすきのまで、徒歩5分程。
大通公園まで、徒歩7分と都心に位置するマンションです。
[109060 : 売買]
すすきの近く、浴室トイレ別のワンルーム、都市ガスの給湯・暖房・コンロ付き。
投資にセカンドハウスに活躍します。室内は、内装リフォーム中(2024年11月末日完成予定)。
建物は外壁タイル貼りで、共用玄関オートロック、インターホンになっておりエントランスには便利な宅配ボックスも設置があります。建物地下に駐車場、駐輪場、バイク置場等があり管理人さんも日勤で勤務があります。
地下鉄「すすきの」、「西11丁目」駅まで各徒歩7分。市電「資生館小学校前」停まで徒歩4分。
大通・すすきのまで、徒歩5分程。
大通公園まで、徒歩7分と都心に位置するマンションです。