[売買]
写真・間取図・地図はこのボタンをクリック
| 物件種別 | 中古マンション |
|---|---|
| 物件名 | マンションニュー琴似 |
| 所在地 | 札幌市西区二十四軒二条2丁目4-21 |
| 価格 | 600万円 |
| 最寄駅 | 地下鉄 東西線 二十四軒 徒歩7分 |
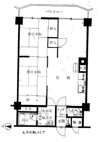
| 間取・面積 | 2LDK(LDK16.0帖+和室6.0帖+和室6.0帖) 62.44m2 【バ】7.21m2 |
| 構造・階床 | RC 7階建の4階 |
| 管理費 | 月額7,750円 所有者負担 |
| 積立金 | 月額6,820円 所有者負担 |
| 築年 | 1974年3月 |
| 総戸数 | 124戸 |
| 現況 | 居住中 |
| 引渡日 | 相談 |
| 賃貸月額 | 50,000円 |
| 年利回り | 10.00% |
| 施主 | 日通不動産 |
| 施工者 | 前田建設工業 |
| 管理会社 | 株式会社マンション管理サービス |
| 取引態様 | 専属専任媒介 |
| 設備 | 水道、都市ガス、風呂、トイレ、エレベーター、シャワー |
| 備考 | 近くには公園や病院、学校など公共施設もあります。飲食店も近くにあります。 令和6年10月よりマンション管理会社がマンション管理サービスになりました。 ユニクロ、紳士服の青木徒歩3分以内 |
![]() |
![]() |
![]() |
![]() |
![]() |
| アパマンプラザ | 新築賃貸札幌プラザ | マンション投資の鉄人 | 札幌不動産管理プラザ | 札幌賃貸プラザ |
![]() |
![]() |
![]() |
![]() |
![]() |
| 札幌マンスリーマンションプラザ | 札幌家具付マンションアベニュー | 札幌マンション学生賃貸スクウェア | 札幌中古マンション.net | 札幌インテリア |
Copyright (c) www.apaman-plaza.co.jp All rights reserved.


| 物件名 | マンションニュー琴似 |
| 所在地 | 札幌市西区二十四軒二条2丁目4-21 |
| 価格 | 600万円 |
| 交通機関 | 地下鉄 東西線 二十四軒 徒歩7分 |
| 間取・面積 | 2LDK(LDK16.0帖+和室6.0帖+和室6.0帖) 62.44[m2] 【バ】7.21[m2] |
| 構造・階床 | RC・7階建の4階 |
| 管理費 | 7,750円/月 所有者負担 |
| 積立金 | 6,820円/月 所有者負担 |
| 築年数 | 1974年3月 |
| 総戸数 | 124戸 |
| 現況 | 居住中 |
| 引渡日 | 相談 |
| 賃貸月額 | 50,000円 |
| 年利回り | 10.00% |
| 施主 | 日通不動産 |
| 施工 | 前田建設工業 |
| 管理会社 | 株式会社マンション管理サービス |
| 取引態様 | 専属専任媒介 |
| 設備 | |
| 備考 | 近くには公園や病院、学校など公共施設もあります。飲食店も近くにあります。 令和6年10月よりマンション管理会社がマンション管理サービスになりました。 ユニクロ、紳士服の青木徒歩3分以内 |
3LDKを2LDKに以前改修しました。リビングはフローリング。賃貸中で家賃月額50,000円実質手取りは35,430円年利回り7.08%。平成23年より入居、固定資産・都市計画税58,700円日当たり良好。バス停がマンションの前にあります。ユニクロや紳士服の青木もすぐ近く徒歩3分。買い物の便は良いです。
[108873 : 売買]
3LDKを2LDKに以前改修しました。リビングはフローリング。賃貸中で家賃月額50,000円実質手取りは35,430円年利回り7.08%。平成23年より入居、固定資産・都市計画税58,700円日当たり良好。バス停がマンションの前にあります。ユニクロや紳士服の青木もすぐ近く徒歩3分。買い物の便は良いです。