[売買]

プラザハイツ24(家具家電付)

プラザハイツ24(家具家電付) 外観 写真・間取図・地図へのリンク

写真・間取図・地図はこのボタンをクリック

お気に入り物件一覧を見る
お問い合わせ先
株式会社アパマンプラザ
電話:011-513-0007 FAX:011-513-7778
フリーダイヤル:0120-015510(携帯可)
E-mail: [email protected]
物件種別中古マンション
物件名プラザハイツ24(家具家電付)
所在地札幌市北区北二十三条西4丁目2-3
価格340万円  
最寄駅地下鉄 南北線 北24条 徒歩1分
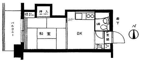
間取・面積1DK(洋室6.0帖+DK5.0帖) 19.5m2 【バ】4.05m2
構造・階床SRC 11階建の2階
管理費月額5,300円  所有者負担
積立金月額9,000円  所有者負担
築年1982年3月
総戸数198戸
現況居住中
引渡日相談
賃貸月額35,300円
年利回り7.38%
施主北海道住宅供給共済共同組合
施工者北日本興業
管理会社エムエムエスマンションマネージメントサービス株式会社
取引態様専属専任媒介
設備 水道、都市ガス、風呂、トイレ、エレベーター、給湯、シャワー
備考通信費 63円
★家具家電付物件★
(冷蔵庫、電子レンジ、洗濯機、テレビ、ガステーブル、照明、机、イス、ベッド、カーテン)
◆室内床オールクッションフロア
◆経済的な灯油暖房
◆夜間オートロック
◆防犯カメラ設置(エレベーター前)
◆平成15年7月外壁大規模修繕工事済
◆売主契約不適合免責
◆オーナーチェンジ

※※※ 家具家電付き!北24条エリアの投資向けマンション! ※※※
 北24条は、地下鉄出入り口が5ヶ所あり、目の前に大きなバスターミナルがあります。コンビニも近くにあり、スーパーまで徒歩5分、すすきのに次ぐ飲食店街などがあり交通・買物の便利が良く人気地域です。

 地下鉄北24条駅から大通駅まで7分と移動時間があまりかからず通学・通勤にとても便利です。特に札幌駅から北24条駅までは北海道大学のキャンパスがあります。

 「プラザハイツ24」は、夜間オートロック、防犯カメラ設置になっておりますのでセキュリティーなどの印象もとても良いです。
 室内は西向きバルコニーで、家具・家電(ベッド、冷蔵庫、電子レンジ、洗濯機、テレビ、ガステーブル、机、イス、照明器具、カーテン、収納棚)が設置されています。
 2023年10月に和室の床を畳からクッションフロアに変更したため、床はオールクッションフロアとなっています。
 こちらのお部屋は2階の為、忙しい朝のエレベーター待ち等に影響されず階段で外出できるのもオススメポイントです。

【近隣施設までの距離】
◇ローソン 徒歩1分
◇地下鉄入口、バスターミナルは隣の建物
◇北洋銀行北24条支店 徒歩1分
◇北海道銀行、北23条郵便局 徒歩2分
◇スーパー(マックスバリュー) 徒歩5分

[108303 : 売買]

株式会社アパマンプラザ運営サイト
アパマンプラザ 新築賃貸札幌プラザ マンション投資の鉄人 札幌不動産管理プラザ 札幌賃貸プラザ
アパマンプラザ 新築賃貸札幌プラザ マンション投資の鉄人 札幌不動産管理プラザ 札幌賃貸プラザ
札幌マンスリーマンションプラザ 札幌家具付マンション Avenue 札幌マンション学生賃貸 square 札幌中古マンション.net 札幌インテリア
札幌マンスリーマンションプラザ 札幌家具付マンションアベニュー 札幌マンション学生賃貸スクウェア 札幌中古マンション.net 札幌インテリア

Copyright (c) www.apaman-plaza.co.jp All rights reserved.

売買物件
プラザハイツ24(家具家電付)
340万円 / 1DK(洋室6.0帖+DK5.0帖) / 地下鉄 南北線 北24条 徒歩1分
問い合わせ:アパマンプラザ 〒064-0809 札幌市中央区南9条西4丁目1-12
TEL:011-513-0007 / FAX:011-513-7778 / フリーダイヤル:0120-015510 (携帯可)
email:[email protected]

物件情報
物件名プラザハイツ24(家具家電付)
所在地札幌市北区北二十三条西4丁目2-3
価格340万円 
交通機関地下鉄 南北線 北24条 徒歩1分
間取・面積1DK(洋室6.0帖+DK5.0帖)  19.5[m2] 【バ】4.05[m2]
構造・階床SRC・11階建の2階
管理費5,300円/月 所有者負担
積立金9,000円/月 所有者負担
築年数1982年3月
総戸数198戸
現況居住中
引渡日相談
賃貸月額35,300円
年利回り7.38%
施主北海道住宅供給共済共同組合
施工北日本興業
管理会社エムエムエスマンションマネージメントサービス株式会社
取引態様専属専任媒介
設備
備考通信費 63円
★家具家電付物件★
(冷蔵庫、電子レンジ、洗濯機、テレビ、ガステーブル、照明、机、イス、ベッド、カーテン)
◆室内床オールクッションフロア
◆経済的な灯油暖房
◆夜間オートロック
◆防犯カメラ設置(エレベーター前)
◆平成15年7月外壁大規模修繕工事済
◆売主契約不適合免責
◆オーナーチェンジ

物件レビュー

※※※ 家具家電付き!北24条エリアの投資向けマンション! ※※※
 北24条は、地下鉄出入り口が5ヶ所あり、目の前に大きなバスターミナルがあります。コンビニも近くにあり、スーパーまで徒歩5分、すすきのに次ぐ飲食店街などがあり交通・買物の便利が良く人気地域です。

 地下鉄北24条駅から大通駅まで7分と移動時間があまりかからず通学・通勤にとても便利です。特に札幌駅から北24条駅までは北海道大学のキャンパスがあります。

 「プラザハイツ24」は、夜間オートロック、防犯カメラ設置になっておりますのでセキュリティーなどの印象もとても良いです。
 室内は西向きバルコニーで、家具・家電(ベッド、冷蔵庫、電子レンジ、洗濯機、テレビ、ガステーブル、机、イス、照明器具、カーテン、収納棚)が設置されています。
 2023年10月に和室の床を畳からクッションフロアに変更したため、床はオールクッションフロアとなっています。
 こちらのお部屋は2階の為、忙しい朝のエレベーター待ち等に影響されず階段で外出できるのもオススメポイントです。

【近隣施設までの距離】
◇ローソン 徒歩1分
◇地下鉄入口、バスターミナルは隣の建物
◇北洋銀行北24条支店 徒歩1分
◇北海道銀行、北23条郵便局 徒歩2分
◇スーパー(マックスバリュー) 徒歩5分

[108303 : 売買]