[賃貸]
写真・間取図・地図はこのボタンをクリック
お問い合わせフォームはこのボタンをクリック
| 物件種別 | 家具付マンション | ||||||||||||
|---|---|---|---|---|---|---|---|---|---|---|---|---|---|
| 物件名 | 琴似パレスハイツ | ||||||||||||
| 所在地 | 札幌市西区琴似二条5丁目2-8 | ||||||||||||
| 交通機関 | 地下鉄 東西線 琴似 徒歩2分 | ||||||||||||
| 賃料(月額) | 2.9万円 保証人なし、保証会社利用でも契約できます 短期契約時の賃料
※短期契約は敷金が一律2万円となります | ||||||||||||
| 共益費(月額) | 9,000円 | ||||||||||||
| 敷金 / 礼金 | 1ヶ月 / なし 仲介手数料不要 ※契約時に事務手数料として8,800円(税込) | ||||||||||||
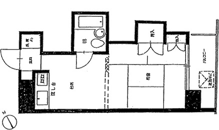
| 間取り | 1DK(DK5.0帖+和室6.0帖) | ||||||||||||
| 構造 | SRC | ||||||||||||
| 階床 | 11階建の5階 | ||||||||||||
| 駐車場 | なし | ||||||||||||
| 入居可能日 | 即時 | ||||||||||||
| 付帯設備 | 水道、都市ガス、風呂、トイレ、エレベーター、給湯、シャワー
付帯家具・家電
照明、カーテン、冷蔵庫、電子レンジ、食器棚、洗濯機、掃除機、ベッド、テレビ、ダイニングテーブル・デスク | ||||||||||||
| インターネット 設備 |
| ||||||||||||
| 備考 | ・間取り 1DK(6帖+5帖) ・面積 17.72㎡ ・バルコニーあり ・灯油FF暖房 ・洗濯機置場 ・家具家電付 ・イオンまで徒歩2分 | ||||||||||||
| 付近の学校 |
札幌建築デザイン専門学校 札幌福祉保育専門学校 札幌医療科学専門学校(バイオ館) |
Copyright (c) www.apaman-plaza.co.jp All rights reserved.


照明、カーテン、冷蔵庫、電子レンジ、食器棚、洗濯機、掃除機、ベッド、テレビ、ダイニングテーブル・デスク
●ご希望の方には寝具類のご用意もしております。
| 期 間 | 家賃(月額) |
| 3ヵ月 | 3.77万円 |
| 4~6ヵ月 | 3.48万円 |
| 7~9ヵ月 | 3.19万円 |
| 10~11ヵ月 | 3.04万円 |
| 12ヵ月以上 | 2.9万円 |
| 物件名 | 琴似パレスハイツ |
| 所在地 | 札幌市西区琴似二条5丁目2-8 |
| 賃料(月額) | 2.9万円 |
| 交通機関 | 地下鉄 東西線 琴似 徒歩2分 |
| 間取り | 1DK(DK5.0帖+和室6.0帖) |
| 敷金 | 1ヶ月 |
| 礼金 | なし |
| 構造 | SRC |
| 階床 | 11階建の5階 |
| 駐車場 | なし |
| 共益費(月額) | 9,000円 |
| 可能入居日 | 即時 |
| 付帯設備 | 水道、都市ガス、風呂、トイレ、エレベーター、給湯、シャワー |
| インターネット | NTT対応 |
| 備考 | ・間取り 1DK(6帖+5帖) ・面積 17.72㎡ ・バルコニーあり ・灯油FF暖房 ・洗濯機置場 ・家具家電付 ・イオンまで徒歩2分 |
このマンションは西区の中心、地下鉄琴似駅より徒歩2分の好立地にあり、周辺には大型スーパーやコンビニ、区役所、バスターミナルなど多くの施設が集まっています。
お部屋は、単身用の1DKタイプ。収納スペースも多く使い勝手は良好です。
暖房は灯油FF暖房でとても経済的です。
家具家電付きですので、すぐに入居可能です。
人気の高い琴似エリアにある物件です。
[406627 : 賃貸]
このマンションは西区の中心、地下鉄琴似駅より徒歩2分の好立地にあり、周辺には大型スーパーやコンビニ、区役所、バスターミナルなど多くの施設が集まっています。
お部屋は、単身用の1DKタイプ。収納スペースも多く使い勝手は良好です。
暖房は灯油FF暖房でとても経済的です。
家具家電付きですので、すぐに入居可能です。
人気の高い琴似エリアにある物件です。