[賃貸]
写真・間取図・地図はこのボタンをクリック
お問い合わせフォームはこのボタンをクリック
| 物件種別 | 家具付マンション | ||||||||||||
|---|---|---|---|---|---|---|---|---|---|---|---|---|---|
| 物件名 | チサンマンション札幌第2 | ||||||||||||
| 所在地 | 札幌市中央区南十一条西1丁目4-12 | ||||||||||||
| 交通機関 | 地下鉄 南北線 中島公園 徒歩3分 | ||||||||||||
| 賃料(月額) | 4万円 保証人なし、保証会社利用でも契約できます 短期契約時の賃料
※短期契約は敷金が一律2万円となります | ||||||||||||
| 共益費(月額) | 10,000円 | ||||||||||||
| 敷金 / 礼金 | 1ヶ月 / なし 仲介手数料不要 ※契約時に事務手数料として8,800円(税込) | ||||||||||||
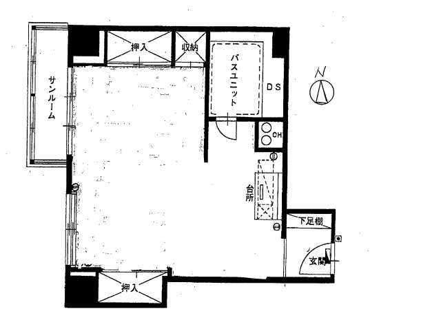
| 間取り | ワンルーム(洋室17.0帖+K4.0帖) | ||||||||||||
| 構造 | SRC | ||||||||||||
| 階床 | 11階建の2階 | ||||||||||||
| 駐車場 | なし | ||||||||||||
| 入居可能日 | 即時 | ||||||||||||
| 付帯設備 | 水道、都市ガス、風呂、トイレ、エレベーター、給湯、シャワー
付帯家具・家電
冷蔵庫、電子レンジ、洗濯機、セミダブルベッド、照明付き、テレビ、テーブル・椅子、カーテン、灯油暖房、タンス、食器棚 | ||||||||||||
| インターネット 設備 |
| ||||||||||||
| 備考 | ・灯油暖房 ・宅配ボックス ・クローゼット ・押入 ・眺望良好 ・日当たり良好 ・家具家電付き、短期契約可能 | ||||||||||||
| 付近の学校 |
北海学園大学 札幌ランゲージセンター日本語科 札幌社会福祉専門学校 日本エステティック専門学校 北海道自動車短期大学 北海道科学大学短期大学部 |
Copyright (c) www.apaman-plaza.co.jp All rights reserved.


冷蔵庫、電子レンジ、洗濯機、セミダブルベッド、照明付き、テレビ、テーブル・椅子、カーテン、灯油暖房、タンス、食器棚
●ご希望の方には寝具類のご用意もしております。
| 期 間 | 家賃(月額) |
| 3ヵ月 | 5.2万円 |
| 4~6ヵ月 | 4.8万円 |
| 7~9ヵ月 | 4.4万円 |
| 10~11ヵ月 | 4.2万円 |
| 12ヵ月以上 | 4万円 |
| 物件名 | チサンマンション札幌第2 |
| 所在地 | 札幌市中央区南十一条西1丁目4-12 |
| 賃料(月額) | 4万円 |
| 交通機関 | 地下鉄 南北線 中島公園 徒歩3分 |
| 間取り | ワンルーム(洋室17.0帖+K4.0帖) |
| 敷金 | 1ヶ月 |
| 礼金 | なし |
| 構造 | SRC |
| 階床 | 11階建の2階 |
| 駐車場 | なし |
| 共益費(月額) | 10,000円 |
| 可能入居日 | 即時 |
| 付帯設備 | 水道、都市ガス、風呂、トイレ、エレベーター、給湯、シャワー |
| インターネット | NTT対応 |
| 備考 | ・灯油暖房 ・宅配ボックス ・クローゼット ・押入 ・眺望良好 ・日当たり良好 ・家具家電付き、短期契約可能 |
チサンマンション札幌第2から地下鉄南北線中島公園駅まで徒歩3分、中島公園までは目の前の徒歩1分、すすきのまででも徒歩10分です。コンビニへは徒歩1分です。マンション1階には喫茶店、ソバ屋さんがテナントとして入ってます。
目の前の中島公園は、憩いの場としても有名で、公園内には札幌コンサートホール(kitara)、豊平館、道立文学館、冬のスポーツ博物館、球技場、体育センター、神社などがあります。
中島公園周辺には、ビジネスホテルやシティホテルも数多くあります。
室内は2DKタイプを改装してワンルームにしました。
眺望もよく中島公園を見れる明るい部屋です。
光ファイバー、地デジ、BS放送対応です。
1階には宅配BOXがあります。
[306766 : 賃貸]
チサンマンション札幌第2から地下鉄南北線中島公園駅まで徒歩3分、中島公園までは目の前の徒歩1分、すすきのまででも徒歩10分です。コンビニへは徒歩1分です。マンション1階には喫茶店、ソバ屋さんがテナントとして入ってます。
目の前の中島公園は、憩いの場としても有名で、公園内には札幌コンサートホール(kitara)、豊平館、道立文学館、冬のスポーツ博物館、球技場、体育センター、神社などがあります。
中島公園周辺には、ビジネスホテルやシティホテルも数多くあります。
室内は2DKタイプを改装してワンルームにしました。
眺望もよく中島公園を見れる明るい部屋です。
光ファイバー、地デジ、BS放送対応です。
1階には宅配BOXがあります。