[賃貸]
写真・間取図・地図はこのボタンをクリック
お問い合わせフォームはこのボタンをクリック
| 物件種別 | 家具付マンション | ||||||||||||
|---|---|---|---|---|---|---|---|---|---|---|---|---|---|
| 物件名 | 札幌第1パークハイツ | ||||||||||||
| 所在地 | 札幌市中央区南六条西9丁目1019-12 | ||||||||||||
| 交通機関 | 地下鉄 東西線 西11丁目 徒歩8分 | ||||||||||||
| 賃料(月額) | 7.5万円 保証人なし、保証会社利用でも契約できます 短期契約時の賃料
※短期契約は敷金が一律2万円となります | ||||||||||||
| 共益費(月額) | 15,000円 | ||||||||||||
| 敷金 / 礼金 | 1ヶ月 / なし 仲介手数料不要 ※契約時に事務手数料として8,800円(税込) | ||||||||||||
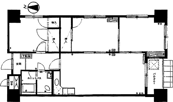
| 間取り | 3LDK(洋室12.0帖+洋室6.0帖+和室6.0帖+洋室5.0帖) | ||||||||||||
| 構造 | SRC | ||||||||||||
| 階床 | 11階建の9階 | ||||||||||||
| 駐車場 | なし | ||||||||||||
| 入居可能日 | 即時 | ||||||||||||
| 付帯設備 | 水道、都市ガス、風呂、トイレ、エレベーター、給湯、シャワー
付帯家具・家電
冷蔵庫、電子レンジ、洗濯機、ベッド2台、照明付き、テレビ、ダイニングテーブル・デスク、温水洗浄便座 | ||||||||||||
| インターネット 設備 |
| ||||||||||||
| 備考 | ・3LDK(12帖+6帖+6帖+5帖) ・ベッド2台、冷蔵庫、洗濯機、テレビ、ソファ、テーブル、机、イス、ワードローブ、タンス、照明、カーテン、レンジ、コンロ、掃除機、温水便座南向き3LDK、家具・家電付き物件です。 ・短期契約可能。 ・水道基本料月額2,112円 ・給湯基本料月額3,600円 ・暖房料月額(11月~4月)15,570円 (10月と5月) 7,785円 ・短期契約も可能です。 | ||||||||||||
| 付近の学校 |
札幌医療科学専門学校(中央館) 吉田学園総合福祉専門学校 札幌社会福祉専門学校 札幌ビジュアルアーツ 札幌デザイナー学院 札幌スクールオブビジネス 北海道ドレスメーカー学院 IAY 札幌ランゲージセンター日本語科 札幌医科大学 EC英会話(グランドホテル前校) |
Copyright (c) www.apaman-plaza.co.jp All rights reserved.


冷蔵庫、電子レンジ、洗濯機、ベッド2台、照明付き、テレビ、ダイニングテーブル・デスク、温水洗浄便座
●ご希望の方には寝具類のご用意もしております。
| 期 間 | 家賃(月額) |
| 3ヵ月 | 9.75万円 |
| 4~6ヵ月 | 9万円 |
| 7~9ヵ月 | 8.25万円 |
| 10~11ヵ月 | 7.87万円 |
| 12ヵ月以上 | 7.5万円 |
| 物件名 | 札幌第1パークハイツ |
| 所在地 | 札幌市中央区南六条西9丁目1019-12 |
| 賃料(月額) | 7.5万円 |
| 交通機関 | 地下鉄 東西線 西11丁目 徒歩8分 |
| 間取り | 3LDK(洋室12.0帖+洋室6.0帖+和室6.0帖+洋室5.0帖) |
| 敷金 | 1ヶ月 |
| 礼金 | なし |
| 構造 | SRC |
| 階床 | 11階建の9階 |
| 駐車場 | なし |
| 共益費(月額) | 15,000円 |
| 可能入居日 | 即時 |
| 付帯設備 | 水道、都市ガス、風呂、トイレ、エレベーター、給湯、シャワー |
| インターネット | J:COM対応 |
| 備考 | ・3LDK(12帖+6帖+6帖+5帖) ・ベッド2台、冷蔵庫、洗濯機、テレビ、ソファ、テーブル、机、イス、ワードローブ、タンス、照明、カーテン、レンジ、コンロ、掃除機、温水便座南向き3LDK、家具・家電付き物件です。 ・短期契約可能。 ・水道基本料月額2,112円 ・給湯基本料月額3,600円 ・暖房料月額(11月~4月)15,570円 (10月と5月) 7,785円 ・短期契約も可能です。 |
札幌第一パークハイツから地下鉄東西線西11丁目駅まで徒歩7分、地下鉄南北線すすきの駅まで徒歩7分。狸小路(アーケード商店街)まで徒歩4分、大通り公園まで徒歩8分です。
西11丁目周辺は、中央区役所、ホテル、病院、合同庁舎、文化会館、放送局、裁判所などのビジネス街です。
札幌第一パークハイツ総戸数211戸でエレベータが4機も付いている大型マンションです。
管理人もいますので安心です。
買い物は、セブンイレブン、ファミリーマートまで徒歩1分、、24時間営業の東光ストアが徒歩4分の距離です。徒歩1分以内にコインランドリーもあります。
間取は3LDKタイプの家具家電付でベッド、冷蔵庫、洗濯機、テレビ、机、イス、ワードローブ、照明、カーテン、レンジ、コンロ、掃除機、温水便座が設置されていますので、すぐに入居できます。
[256431 : 賃貸]
札幌第一パークハイツから地下鉄東西線西11丁目駅まで徒歩7分、地下鉄南北線すすきの駅まで徒歩7分。狸小路(アーケード商店街)まで徒歩4分、大通り公園まで徒歩8分です。
西11丁目周辺は、中央区役所、ホテル、病院、合同庁舎、文化会館、放送局、裁判所などのビジネス街です。
札幌第一パークハイツ総戸数211戸でエレベータが4機も付いている大型マンションです。
管理人もいますので安心です。
買い物は、セブンイレブン、ファミリーマートまで徒歩1分、、24時間営業の東光ストアが徒歩4分の距離です。徒歩1分以内にコインランドリーもあります。
間取は3LDKタイプの家具家電付でベッド、冷蔵庫、洗濯機、テレビ、机、イス、ワードローブ、照明、カーテン、レンジ、コンロ、掃除機、温水便座が設置されていますので、すぐに入居できます。