[売買]
写真・間取図・地図はこのボタンをクリック
| 物件種別 | 中古マンション |
|---|---|
| 物件名 | GSハイム中島公園 |
| 所在地 | 札幌市中央区南十一条西1丁目3-7 |
| 価格 | 500万円 |
| 最寄駅 | 地下鉄 南北線 中島公園 徒歩4分 |
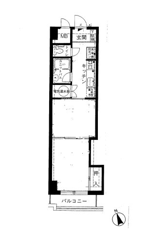
| 間取・面積 | 1DK(K3.0帖+洋室6.0帖+洋室4.5帖) 34.65m2 【バ】3.37m2 |
| 構造・階床 | SRC 8階建の3階 |
| 管理費 | 月額4,680円 所有者負担 |
| 積立金 | 月額7,280円 所有者負担 |
| 築年 | 1981年1月 |
| 総戸数 | 61戸 |
| 現況 | 空室 |
| 引渡日 | 即時 |
| 賃貸月額 | 34,790円 |
| 年利回り | (予想)11.92% |
| 施主 | 株式会社 大志 |
| 施工者 | 鉄建建設 |
| 管理会社 | 三菱地所コミュニティ株式会社 |
| 取引態様 | 専属専任媒介 |
| 設備 | 水道、都市ガス、風呂、トイレ、エレベーター、エアコン、給湯 |
| 備考 | 駐車場、駐輪場、バイク置場あり ◆電気温水器(給湯) 都市ガス(暖房・コンロ) ◆南向きバルコニー ◇コンビニまで徒歩1分 ◇すすきのまで徒歩9分 |
![]() |
![]() |
![]() |
![]() |
![]() |
| アパマンプラザ | 新築賃貸札幌プラザ | マンション投資の鉄人 | 札幌不動産管理プラザ | 札幌賃貸プラザ |
![]() |
![]() |
![]() |
![]() |
![]() |
| 札幌マンスリーマンションプラザ | 札幌家具付マンションアベニュー | 札幌マンション学生賃貸スクウェア | 札幌中古マンション.net | 札幌インテリア |
Copyright (c) www.apaman-plaza.co.jp All rights reserved.


| 物件名 | GSハイム中島公園 |
| 所在地 | 札幌市中央区南十一条西1丁目3-7 |
| 価格 | 500万円 |
| 交通機関 | 地下鉄 南北線 中島公園 徒歩4分 |
| 間取・面積 | 1DK(K3.0帖+洋室6.0帖+洋室4.5帖) 34.65[m2] 【バ】3.37[m2] |
| 構造・階床 | SRC・8階建の3階 |
| 管理費 | 4,680円/月 所有者負担 |
| 積立金 | 7,280円/月 所有者負担 |
| 築年数 | 1981年1月 |
| 総戸数 | 61戸 |
| 現況 | 空室 |
| 引渡日 | 即時 |
| 賃貸月額 | 34,790円 |
| 年利回り | (予想)11.92% |
| 施主 | 株式会社 大志 |
| 施工 | 鉄建建設 |
| 管理会社 | 三菱地所コミュニティ株式会社 |
| 取引態様 | 専属専任媒介 |
| 設備 | |
| 備考 | 駐車場、駐輪場、バイク置場あり ◆電気温水器(給湯) 都市ガス(暖房・コンロ) ◆南向きバルコニー ◇コンビニまで徒歩1分 ◇すすきのまで徒歩9分 |
GSハイム中島公園から地下鉄南北線中島公園駅まで徒歩5分、中島公園は目の前の徒歩1分、ススキノ繁華街まででも徒歩7〜9分です。
現在賃貸中、10年近く入居中、賃料の滞納ありません。賃料月額34,790円から管理費等を差し引いた手取り賃料は月額24,540円実質利回り8.41%。
令和7年電気温水器交換しました。
目の前の中島公園は、市内の憩いの場で、公園内には札幌コンサートホール(kitara)、豊平館、文学館、博物館、球技場、体育センター、などがあります。
付近は大型のホテルが多いためその従業員や会社員、OL、飲食業、調理師、学生、出張先のホテル代わり(セカンドルーム)などに人気の場所です。
ご紹介の物件は、1DKでクローゼット等の収納家具、照明器具、2ドア冷蔵庫、洗濯機、液晶テレビ、ベッド、机、イス等が付いております。
現在賃貸中のためすぐに家賃収入を得ることができます。
[112516 : 売買]
GSハイム中島公園から地下鉄南北線中島公園駅まで徒歩5分、中島公園は目の前の徒歩1分、ススキノ繁華街まででも徒歩7〜9分です。
現在賃貸中、10年近く入居中、賃料の滞納ありません。賃料月額34,790円から管理費等を差し引いた手取り賃料は月額24,540円実質利回り8.41%。
令和7年電気温水器交換しました。
目の前の中島公園は、市内の憩いの場で、公園内には札幌コンサートホール(kitara)、豊平館、文学館、博物館、球技場、体育センター、などがあります。
付近は大型のホテルが多いためその従業員や会社員、OL、飲食業、調理師、学生、出張先のホテル代わり(セカンドルーム)などに人気の場所です。
ご紹介の物件は、1DKでクローゼット等の収納家具、照明器具、2ドア冷蔵庫、洗濯機、液晶テレビ、ベッド、机、イス等が付いております。
現在賃貸中のためすぐに家賃収入を得ることができます。