[売買]
写真・間取図・地図はこのボタンをクリック
| 物件種別 | 中古マンション |
|---|---|
| 物件名 | クリオ本郷通壱番館 |
| 所在地 | 札幌市白石区本郷通8丁目北8-1 |
| 価格 | 730万円 |
| 最寄駅 | 地下鉄 東西線 南郷7丁目 徒歩5分 |
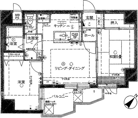
| 間取・面積 | 2LDK(48.91u) 48.91m2 【バ】6.16m2 |
| 構造・階床 | SRC 10階建の8階 |
| 管理費 | 月額10,030円 |
| 積立金 | 月額8,560円 |
| 築年 | 1989年12月 |
| 総戸数 | 0戸 |
| 現況 | 居住中 |
| 引渡日 | 相談 |
| 賃貸月額 | 65,000円 |
| 年利回り | 10.68% |
| 施主 | 明和地所 |
| 施工者 | 村本建設 |
| 管理会社 | 明和地所コミュニティ株式会社 |
| 取引態様 | 専属専任媒介 |
| 設備 | 水道、都市ガス、風呂、トイレ、エレベーター、シャワー |
| 備考 | ◆賃貸中(オーナーチェンジ) 賃料月額65,000円 (手取り月額46,410円) ◆表面利回り10.68% 実質利回り 7.62% ◆南東向き日当・眺望良好 ◆オートロック ◆宅配ボックス ◆本郷通り商店街まで徒歩1分 ◆スーパー(コープさっぽろ)徒歩2分 ◆コンビニまで徒歩2分 |
![]() |
![]() |
![]() |
![]() |
![]() |
| アパマンプラザ | 新築賃貸札幌プラザ | マンション投資の鉄人 | 札幌不動産管理プラザ | 札幌賃貸プラザ |
![]() |
![]() |
![]() |
![]() |
![]() |
| 札幌マンスリーマンションプラザ | 札幌家具付マンションアベニュー | 札幌マンション学生賃貸スクウェア | 札幌中古マンション.net | 札幌インテリア |
Copyright (c) www.apaman-plaza.co.jp All rights reserved.


| 物件名 | クリオ本郷通壱番館 |
| 所在地 | 札幌市白石区本郷通8丁目北8-1 |
| 価格 | 730万円 |
| 交通機関 | 地下鉄 東西線 南郷7丁目 徒歩5分 |
| 間取・面積 | 2LDK(48.91u) 48.91[m2] 【バ】6.16[m2] |
| 構造・階床 | SRC・10階建の8階 |
| 管理費 | 10,030円/月 |
| 積立金 | 8,560円/月 |
| 築年数 | 1989年12月 |
| 総戸数 | 0戸 |
| 現況 | 居住中 |
| 引渡日 | 相談 |
| 賃貸月額 | 65,000円 |
| 年利回り | 10.68% |
| 施主 | 明和地所 |
| 施工 | 村本建設 |
| 管理会社 | 明和地所コミュニティ株式会社 |
| 取引態様 | 専属専任媒介 |
| 設備 | |
| 備考 | ◆賃貸中(オーナーチェンジ) 賃料月額65,000円 (手取り月額46,410円) ◆表面利回り10.68% 実質利回り 7.62% ◆南東向き日当・眺望良好 ◆オートロック ◆宅配ボックス ◆本郷通り商店街まで徒歩1分 ◆スーパー(コープさっぽろ)徒歩2分 ◆コンビニまで徒歩2分 |
クリオ本郷通壱番館は本郷通商店街に面しており飲食店・スーパー・コンビニ・銀行・色々な商店があり、交通・買物の利便性が良く人気の地域です。
南郷7丁目駅から大通駅まで9分と通勤にも便利です。
建物は白い外壁タイル貼で、オートロック、宅配ボックスがあるのも便利です。お部屋は2LDKタイプで、日当り・眺望が良く開放感があります。
現在賃貸中のオーナーチェンジ物件です。
[109696 : 売買]
クリオ本郷通壱番館は本郷通商店街に面しており飲食店・スーパー・コンビニ・銀行・色々な商店があり、交通・買物の利便性が良く人気の地域です。
南郷7丁目駅から大通駅まで9分と通勤にも便利です。
建物は白い外壁タイル貼で、オートロック、宅配ボックスがあるのも便利です。お部屋は2LDKタイプで、日当り・眺望が良く開放感があります。
現在賃貸中のオーナーチェンジ物件です。